Livingstone School Design Review

Nakasongola, Uganda, 2020

project story

우간다 교육의 새로운 거점을 위한 협력
Collaborative Engineering for a Future in Uganda

우간다 나카송골라(Nakasongola) 지역에 세워질 ‘우간다 리빙스톤 학교’는 유치원부터 고등학교까지 모든 과정을 아우르는 대규모 교육 프로젝트입니다. 저희 팀은 이 뜻깊은 프로젝트의 완성도를 높이기 위해, 한국에서 진행된 기존 설계를 정밀하게 검토하는 디자인 리뷰(Design Review)를 진행하였습니다. 아이들이 더 안전하고 쾌적한 환경에서 꿈을 키울 수 있도록, 전문가의 시선으로 도면을 면밀히 분석하고 필요한 부분을 보완해 드렸습니다.

The Uganda Livingstone School, a K-12 comprehensive campus in Nakasongola, is a visionary project dedicated to the future of Ugandan youth. Our team was entrusted with the Design Review of the original architectural plans developed in Korea. Our mission was to elevate the project’s quality by scrutinizing the designs through an expert lens, ensuring that every corner of the campus provides a safe and inspiring environment for students.

design heart

전문성을 더해 완성하는 공간의 디테일
Precision and Global Compliance

우리의 역할은 원안이 가진 가치를 우간다 현지의 상황과 아이들의 활동에 최적화된 설계로 발전시키는 것이었습니다.

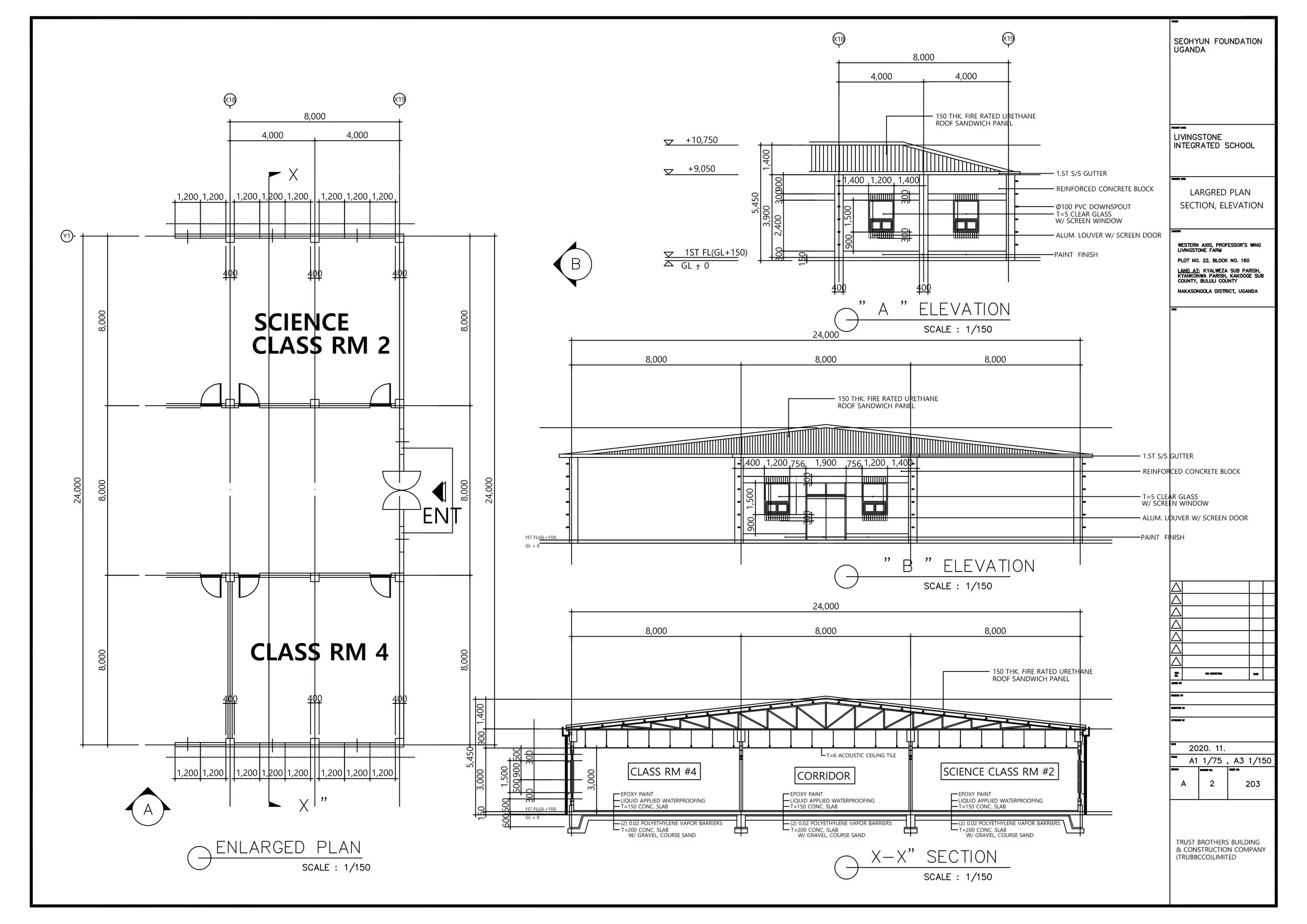
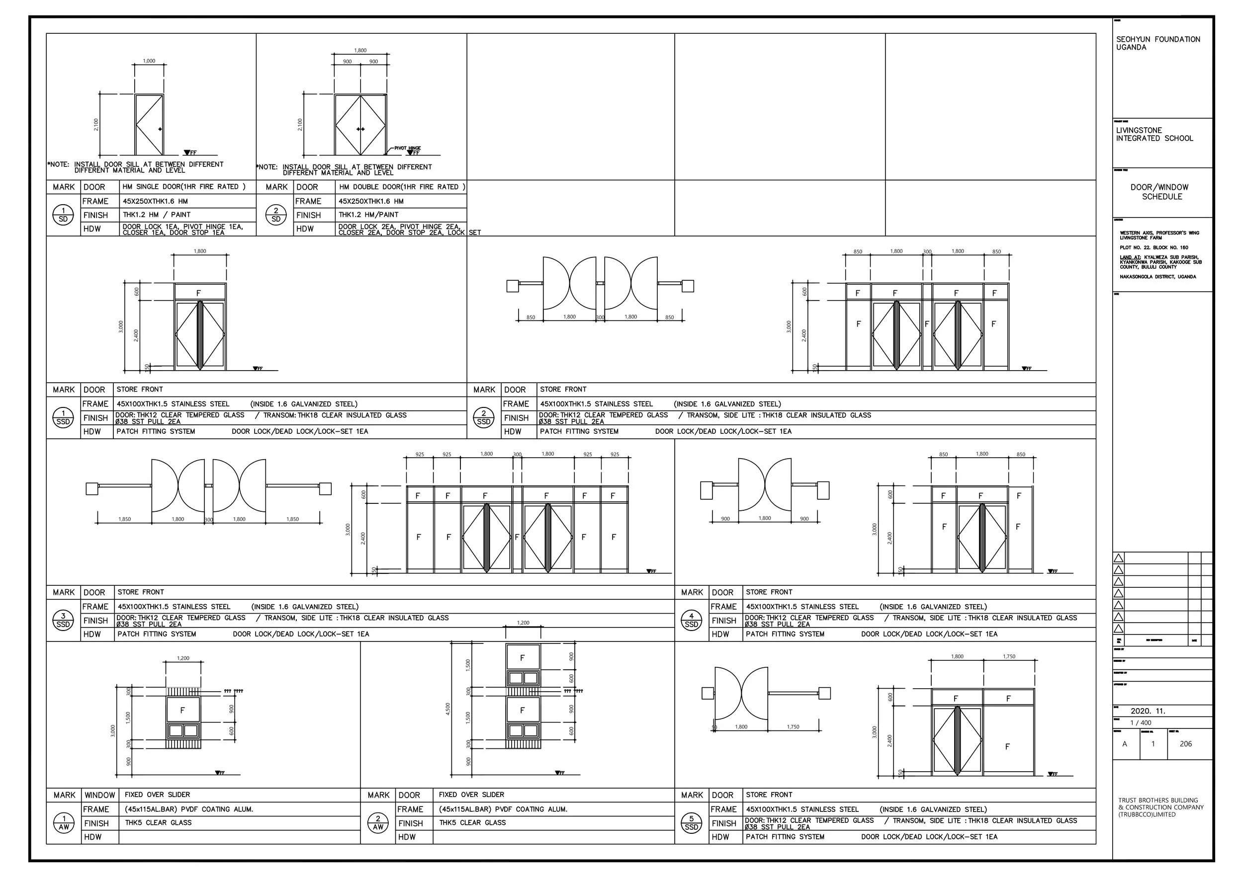
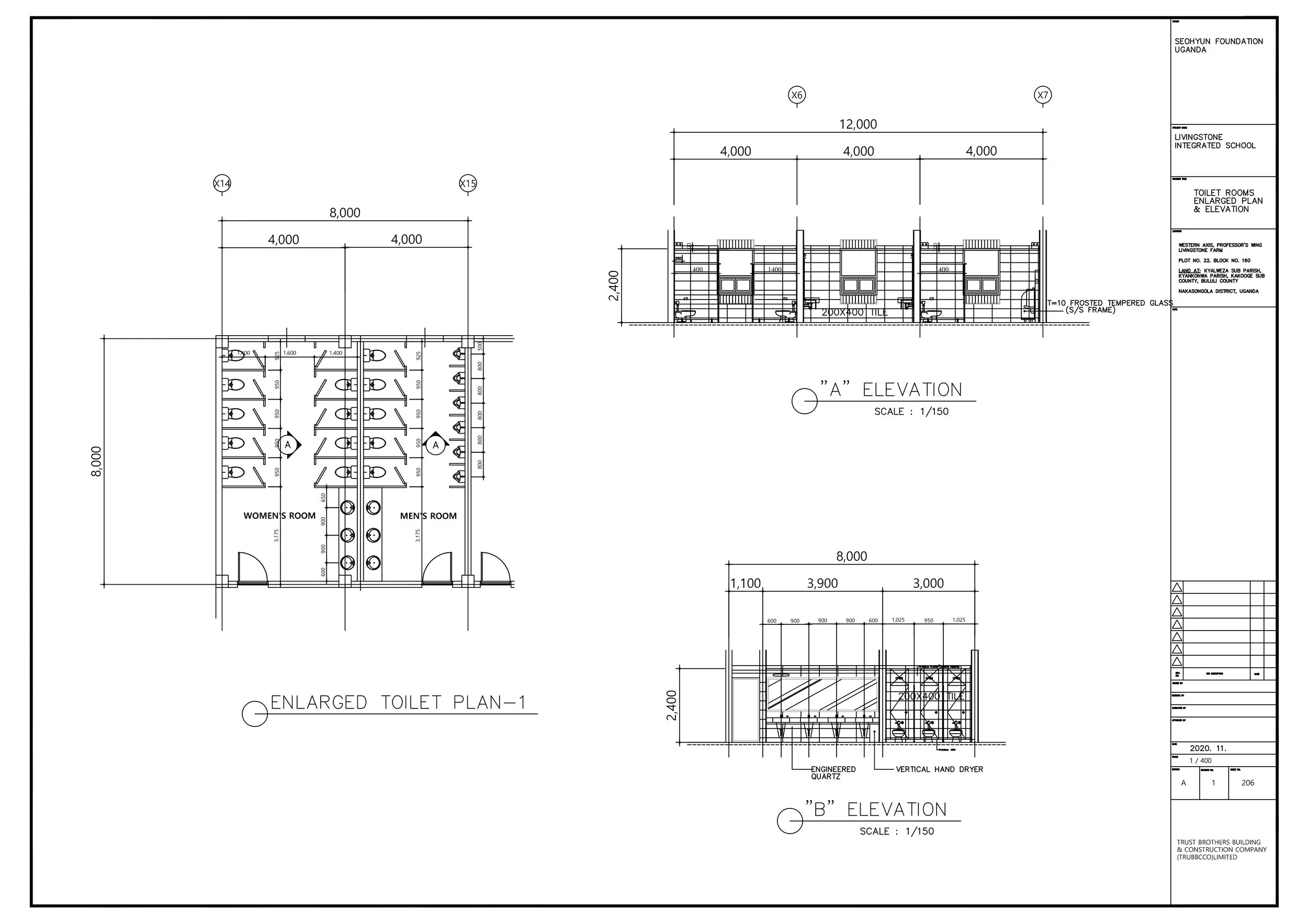
Detail Revision: 기존 설계안의 기술적 요소를 철저히 검토하여, 시공 단계에서 발생할 수 있는 시행착오를 줄이고 학교 시설의 내실을 기할 수 있도록 디테일한 수정을 거쳐 설계를 완성했습니다.

Global Standard Translation: 우간다 현지 건축 허가를 신속하고 원활하게 진행하기 위해, 한국어로 작성된 도면을 영어로 번역하고 현지 기준에 맞춘 도면 패키지로 새롭게 제작해 드렸습니다. 이는 언어의 장벽을 넘어 설계팀의 의도가 현지에 정확히 전달되도록 돕는 중요한 과정이었습니다.

We focused on refining technical details to bridge the gap between initial design and practical execution.

Detailed Revision: We meticulously reviewed and optimized the architectural drawings, adding crucial details to enhance structural integrity and functional efficiency. This proactive approach minimized potential construction issues and strengthened the school's infrastructure.

Technical Translation & Documentation: To facilitate the local permit process in Uganda, we translated all Korean documents and blueprints into English. We reproduced the technical drawings to meet international standards, ensuring seamless communication with local authorities and construction teams.

vision

교육의 현장을 더 견고하게 만드는 기술의 힘
Strengthening Foundations for the Next Generation

학교는 한 지역의 미래를 책임지는 가장 소중한 공간입니다. 저희가 진행한 정교한 설계 리뷰와 최적화 과정이 우간다 나카송골라 아이들에게는 더 나은 학습 환경을, 건축주에게는 신뢰할 수 있는 결과물을 선사하기를 바랍니다. 저희 팀은 앞으로도 글로벌 프로젝트의 든든한 파트너로서, 우리의 전문성이 세계 곳곳에 선한 영향력으로 닿을 수 있도록 최선을 다하겠습니다.

A school is a sanctuary for dreams. We believe our technical expertise and dedication to detail have laid a stronger foundation for the students in Nakasongola. By providing reliable, high-quality design optimization and global compliance support, we aim to be a trusted partner for international missions and educational projects. We remain committed to using our professional skills to create meaningful changes in communities worldwide.

Previous
Previous

Global Mission Church History Wall // Maryland, USA